Bild zum Projekt Bild zum Projekt Bild zum Projekt Bild zum Projekt Bild zum Projekt 
1993_S01
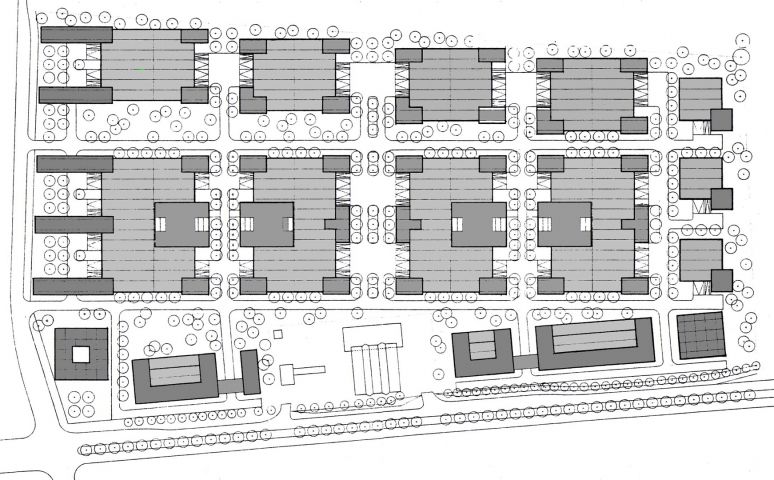
berlin-mahlsdorf, berliner strasse / landsberger strasse
Bild zum Projekt
gip mahlsdorf

st??dtebaulicher realisierungswettbewerb
gewerbe im park
1. preis 1993 mit hildebrandt machleid und walter stepp, berlin
entwurf hochbau

1993_S01_1