Bild zum Projekt Bild zum Projekt Bild zum Projekt Bild zum Projekt Bild zum Projekt Bild zum Projekt 
1992_W01
Bild zum Projekt
wettbewerbe 1990-1992

1992_W01_1
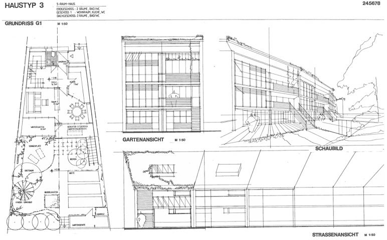
siedlung ortolfstrasse, berlin-altglienicke
staedtebaulicher realisierungswettbewerb
1990, 1. preis

1992_W01_2
markt brandenburg
realisierungswettbewerb
1991, 1. preis

1992_W01_3
kirche osloer stra??e, berlin-wedding
realisierungswettbewerb
1992, 1. preis
1992_W01_1A