Bild zum Projekt Bild zum Projekt Bild zum Projekt Bild zum Projekt 
1995_W01
Bild zum Projekt
wettbewerbe 1993-1995

1995_W01_1
olympisches dorf elstal
st??dtebauliches gutachterverfahren
1995, 2. preis

1995_W01_2
wohnpark michendorf
st??dtebaulicher realisierungswettbewerb
1993, 1. preis
1994 bebauungsplanung

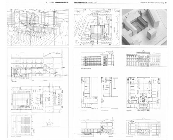
1995_W01_3
konzertsaal der musikhochschule felix-mendelsson-bartholdy, leipzig
realisierungswettbewerb
1995, 2. preis
1995_W01_3